Brighter homes, brighter business

Case studies, handbooks, and tailor-made tools to help you increase the value of your projects
Get project support

Daylight Makes A Difference

Market studies show that daylight makes a difference in residential sales. No matter what kind of projects you’re developing, homebuyers around the world are looking for more daylight, better natural ventilation, and more efficient use of energy.

Stand out

Daylight  differentiates your designs and gives you a competitive edge.

90%

of homebuyers indicate that daylight makes living spaces more desirable and unique.

2 out of 3

customers are willing to pay double the installation cost for roof windows.
Project support and guidance
Contact our experts directly for advice on your project
Name Namesen

Henrik Norlander Smith

Manager of Building Industry at VELUX Group

E: Henrik.norlander@velux.com
+45 21 49 11 05

Name Namesen

Henrik Norlander Smith

Manager of Building Industry at VELUX Group

E: Henrik.norlander@velux.com
+45 21 49 11 05

Find inspiration for your next project in our case library
Selected cases:
Product specifications and tools
Roof-window for flat roof

Product news

Product specifications

Product specifications

BIM-3D objects

BIM/3D objects

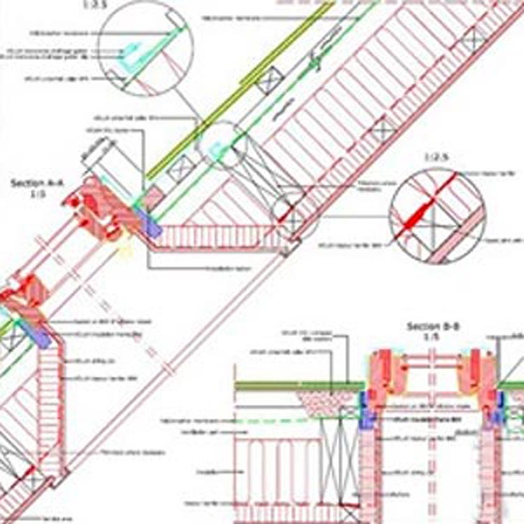
2D-CAD drawing

2D CAD drawings

Daylight visualiser

Daylight visualiser

Illustration with ventilation

Indoor visualiser

news and events
Event 1

Online Daylight Symposium

Event 2

Webinar/ Focus on daylight/learning

Event 3

The Daylight Talk with Hemma Fash